Trilocale in vendita

Polaveno, Via S. Giovanni - San Giovanni
€ 45.000
Prezzo aggiornato
83 Mq 83 Mq
1 bagno 1 bagno

Trilocale in vendita

Polaveno, Via S. Giovanni - San Giovanni

Descrizione annuncio

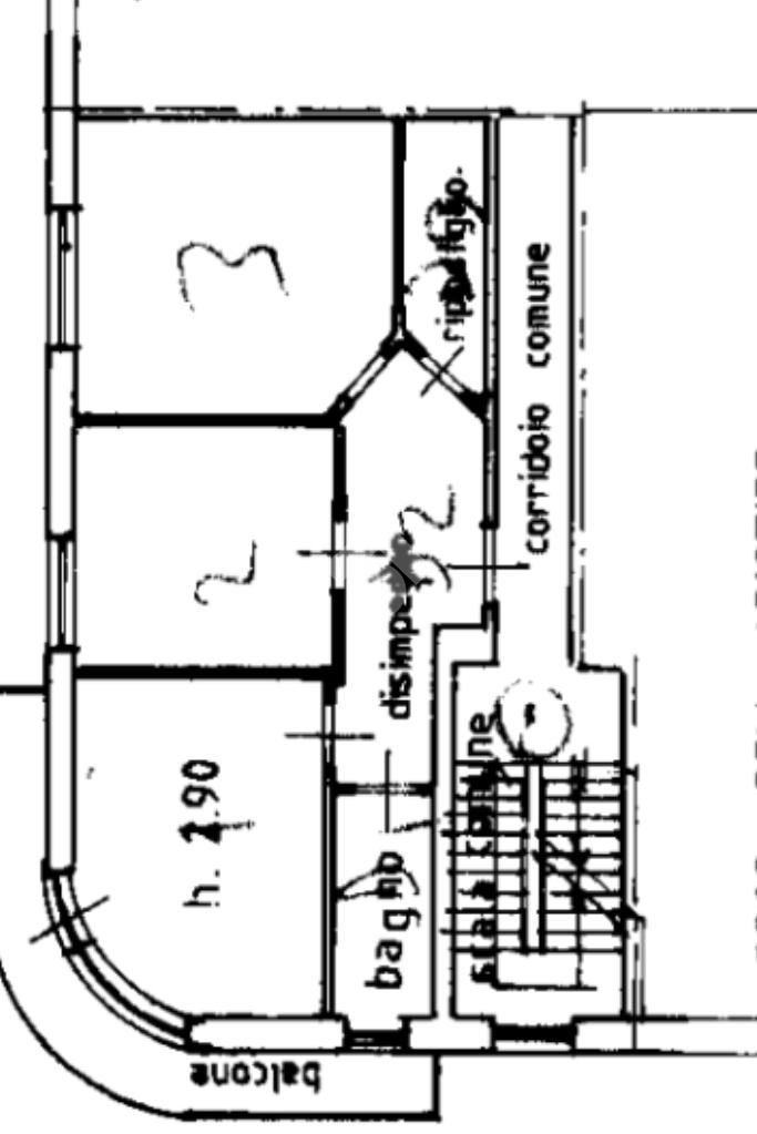
Nel cuore della località di San Giovanni, nel comune di Polaveno, è disponibile un appartamento situato al secondo ed ultimo piano di un edificio costruito intorno al 1950. Questa soluzione, da ristrutturare, offre un'opportunità unica per personalizzare gli spazi secondo le proprie esigenze. L'appartamento si compone di tre locali, tra cui due camere, una cucina abitabile e un bagno finestrato. Un balcone aggiunge un tocco di spazio esterno, ideale per momenti di relax. Inoltre, è presente un comodo ripostiglio per ottimizzare l'organizzazione degli ambienti. La superificie di questa proprietà rappresenta una scelta interessante per chi desidera vivere in una zona tranquilla, ma ben collegata. La posizione al piano alto garantisce una buona luminosità e una vista aperta sui dintorni.

Mostra tutto

Nelle vicinanze

Scuole Scuole
Plesso scolastico Polaveno
870 m
Scuola Primaria Montano Montini
1,3 Km
Farmacia Farmacia
Farmacia Donati Luciano
920 m
Farmacia
1,5 Km
Negozi Negozi
Alimentari Mingardi
1,5 Km
Bar Bar
Bar Stiven
1,5 Km
Ristoranti Ristoranti
Ristorante San Marco
20 m
Ristorante Antico Fagiano
960 m
Trattoria Castello
1,4 Km
Osteria Pizzeria La Zerla
1,4 Km
Agriturismo La Ruer Verda
1,7 Km
Mostra tutto

Caratteristiche

Rif.:
61170355
Piano:
2 di 2 (ultimo Piano)
Balconi:
1
Camere da letto:
2
Arredamento:
Assente
Condizionamento:
Assente
Mostra tutto
Prezzo Prezzo
€ 45.000
Rata mutuo Rata mutuo
€ 214 / mese
Proponi il tuo prezzoProponi il tuo prezzo
Immobile valutato con T·Valuta

Classe Energetica

G
G
G
G
G
G
G
G
G
EP invernale del fabbricato:
EP estiva del fabbricato:
Anno di costruzione:
1950
Riscaldamento:
Assente

Prezzo ridotto di €1 (10%%)

Ti interessa visionare l'immobile?

Fissa un appuntamento  Fissa un appuntamento

Richiedi informazioni

Clicca su Leggi per aprire l'informativa
* Questi campi sono obbligatori

Calcola il tuo mutuo

Semplice e senza impegno
Anticipo

( % )
Mutuo

( % )

pochi semplici passi

inserisci i tuoi dati
Questionario completato
Grazie per aver richiesto un appuntamento senza impegno con un nostro Consulente del Credito e Assicurativo.

Hai inserito correttamente tutti i dati necessari e a breve riceverai una e-mail con un link da convalidare per inviare i tuoi dati.
Affiliato
Imm.re Pegaso Srl
P.zza Garibaldi, 26 25049 Iseo (BS)

Il nostro staff


  • Yasser Beitekh
    Collaboratore

  • Sara Gatti
    Collaboratrice

  • Chiara Mazzotta
    Coordinatrice

  • Paolo Plebani
    Affiliato

  • Nicola Italo Raimondi
    Collaboratore
P.zza Garibaldi, 26 25049 Iseo (BS)
Zona: Lago D'Iseo-Iseo-Provaglio D'Iseo
Mostra su mappa
Orari: lunedì - venerdì 09.00 - 12.30/14.30 - 20.00; sabato 09.00 - 12.30. Festivi o altri orari su appuntamento.
Affiliato
Imm.re Pegaso Srl
P.zza Garibaldi, 26 25049 Iseo (BS)

2026 Tecnocasa Franchising S.p.A. - P. IVA 08365160152 - Via Monte Bianco 60/A 20089 Rozzano (MI). Ogni agenzia ha un proprio titolare ed è autonoma. Privacy policy | Policy utilizzo | Cookie policy